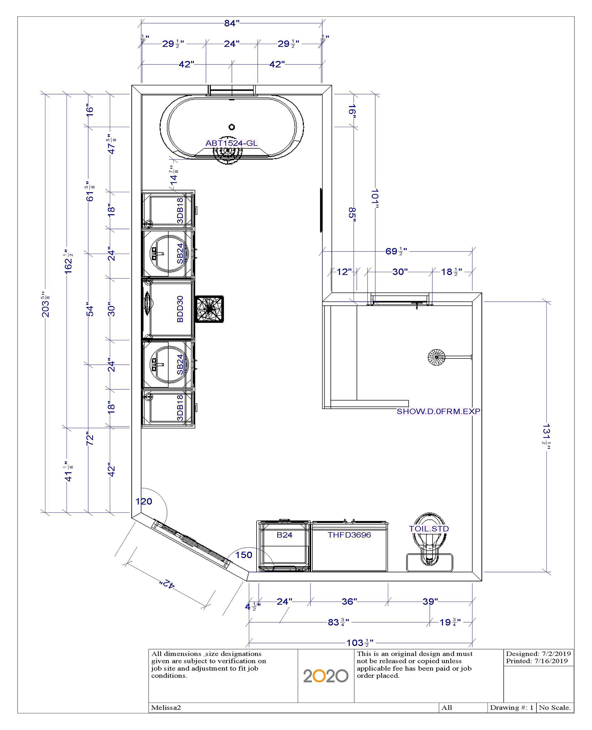
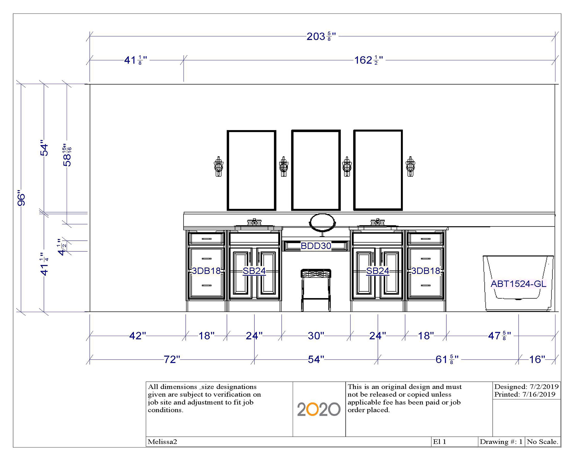
This master bath was in need of a contemporary and practical update. This space was majorly lacking in functionality, storage, safety, and a spa-like ambiance. To accomplish these tasks, drawings, renderings and beautiful material choices were provided. These clients were all about glam and adding color. They decided they had enough room for a massive shower beneath the original skylight. An additional door was added to this master bath to increase privacy. Lastly, the floor was leveled and a significant amount of storage space was added with a full size vanity.









View some of our design process below.








